廠家熱線:13803887028
售后熱線:0379-64327397

瀏覽次數:13521次
所屬分類:負荷拖車
通過模擬發動機負荷、道路載荷以確定被試車輛是否達到設計要求或滿足實際需要
發布日期:2022-06-28 17:48:42
負荷車(又名:負荷拖車、測功車、整車測試裝置、牽引試驗負荷車、熱平衡試驗負荷車),是各種輕、中、重型汽車、卡車、坦克、裝甲車、客車、工程機械、鐵路機車、拖拉機等農用車輛、轎車、商務用車……的整車動力及匹配性能、牽引性能、熱平衡、熱管理、地面通過性能等多種性能研究和試驗評價的必要測試設備,對于車輛的研制、開發及性能評價、檢測鑒定有重要的作用。負荷車通過模擬發動機負荷、道路載荷以確定被試車輛是否達到設計要求或滿足實際需要。
1、負荷拖車適合各種輕、中、重型汽車、卡車、坦克、裝甲車、客車、工程機械、鐵路機車、拖拉機等農用車輛、轎車、商務用車……的整車牽引性能試驗、發動機冷卻系統熱平衡試驗、整車熱管理、牽引車傳動系統率試驗、三高環境下的整車標定、坡道制動試驗(爬坡模擬試驗)、輔助制動試驗、輪胎性能試驗、用戶自定義開發的程控模擬試驗。
2、負荷狀態牽引力可達500KN、牽引狀態牽引力可達200KN;
3、負荷車操作方便,在負荷狀態和牽引狀態實現不停車換檔、實現不換擋全程連續加載;
4、負荷拖車可以實時測量和顯示實際車速、實際發動機轉速、實際吸收功率、 行駛距離、時間、瞬時滑轉率、噪聲等參數,并可判斷曲線是否在公差范圍內;實現環境溫度、壓力、環境濕度的實時測量和修正的功能。試驗系統可對各個試驗數 據以數字和圖形模式的實時監控、自動保存測試過程產生的測量參數和狀態信息、打印輸出各參數的曲線和格式化試驗報告;
5、負荷車系統簡潔、可靠、核心部件免維護;
6、負荷車系統可長時間進行各種試驗;
7、具有駕駛員適時監測功能,多種措施保證測試數據的準確、穩定、系統具有可擴展性和高度的可重復性;
8、采用低速大扭矩測功機,可試驗測功機功率范圍內加載,加載傳動系統匹配合理,機械性好;
9、智能閉環控制技術,使得負荷車能夠實現牽引力在寬范圍內無調節;
10、負荷拖車可自動吹凈跑道表面積存的塵土和輪胎粉末等,以保持跑道摩擦系數恒定;
11、負荷車面應用了智能化前和隔離信號調理技術,所有布線均采用電磁屏蔽措施,電磁干擾小,抗干擾能力強,具有較好的電磁兼容性,電磁干擾指標符合GB/T 17626.12-1998標準要求。
負荷拖車能夠實現在全功率范圍的加載動力輸出。在進行試驗時,負荷試驗系統由負荷拖車與被試驗車輛組成,由被試驗車輛牽引前進,通過對被試驗車輛實施精細調節且穩定的任意負荷,來測量車輛行駛過程中各種負荷的參數值,例如:車速、發動機轉速、牽引力、滑轉率、牽引功率、驅動輪轉速、實際行駛距離、試驗運行時間等。
負荷拖車能夠滿足客戶速度范圍為0—90km/h,功率范圍為0-700kw的中重型車輛的試驗需要,這些試驗類型包括:穩定牽引力試驗、穩定車速試驗、牽引特性試驗等、持續牽引力試驗等。
250kN負荷車
200kN負荷車
100kN負荷車
500KN負荷拖車
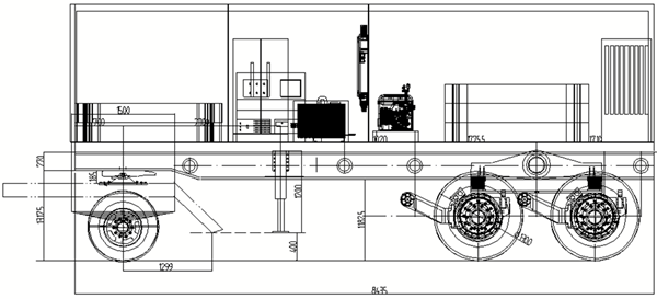
設備儀表箱布置圖
服務宗旨:“以質量求生存,以服務贏市場”,如果您對我們的產品感興趣,歡迎咨詢!
*請認真填寫需求信息,我們會在24小時內與您聯系
聯系人:張經理 潘經理
手機:13803887028 13938842660
公司地址:河南省洛陽市高新區軸承產業集聚區
郵箱:henengdq@126.com
全國咨詢熱線
13803887028 0379-64327397